十六种管道穿楼板孔洞防水做法

学习共享

▲ 管道穿楼板堵塞

▲ 地漏口堵塞节点

▲ 穿卫生间烟道防水节点

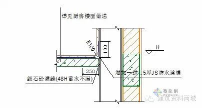
▲ 厨房烟道防水节点

▲ 穿墙管道堵塞节点

▲ 穿墙螺杆洞堵塞节点

▲ 混凝土雨棚/空调板防水节点

▲ 预制空调管孔洞大样

▲ 外墙抹灰分格缝、滴水做法节点

▲ 屋面落水口侧排地漏节点

▲ 屋面排气管设置大样(上人屋面根据使用需要可采用盲沟做法)

▲ 外墙铝合金窗防渗漏节点

▲ 烟道出屋面防水节点

▲ 阳台花池防水做法

▲ 女儿墙、分格缝节点

▲ 管道穿越楼板、屋面板预埋套管做


更多学习资料进入:www.tmeel.com

 建筑软件、培训课程(一级建造师、二级建造师、消防工程师、造价师、环评师、监理工程师、安全工程师、岩土、暖通,建筑人员入门课程...),超低价格货到付款 咨询QQ:100105712 电话:18969125859,
图片 

关注微信 微信号jiangzhuziliao,通过微信发送您的邮箱,即可免费获取建工人员必备软件。  

文章评论