邓建彬
欢迎访问我的空间小站.
首页
邓建彬
评论列表
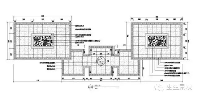
【原创精选】超赞中式铺地,绝对不容错过的干货!
个人日记
亚太景观在中式项目设计上有不少优秀作品,不仅在概念上理念创新,在细节上也具有原创精神,现将亚太景观的原创铺装设计与大家分享。
文章评论
风涧
学习了
空间小站
© All rights reserved.
文章评论
风涧
学习了