【原创精选】与绿城“境心相遇”,当代桃花源——绿城·紫薇公馆

个人日记

基地的西侧为云龙湖风景区,北侧为云龙山风景区,基地交通便利,风景优美,是一块宜居的人居用地。基地南北方向最长约670米,东西方向最长约370米。基地南高北低,最大高差约6米,东高西低,最大高差约7米,如何处理好场地高差问题,如何与自然周边景观环境自然协调,是此次设计的重点。本基地限高30米。规划范围分为南北两个用地片区,北用地沿湖规划为2-3层的中式合院区,在规划结构上,采用组团设置,组团内又围合街巷空间,犹如田园村落。景观以外观和内观相结合,区域内布置小面积段合院,景观以内观为主。户型配比合理。

建筑风格契合汉文化的建筑文脉,采用中式建筑风格和元素,并加以简化和改进;北地块西边为5~8层民国风平层公寓。南地块由6层的花园洋房及6-10层的平层公寓组成,6层的花园洋房沿金山南路布置,6-10层的平层公寓沿南三环路布置,既满足了城市天际线的变化,又最大化的考虑了与山景、水景的结合。

北区的建筑单体采用传统的中式院落布局,将外部景观渗透到庭院内部,从单进院落到两进院落,绿化景观庭院与水院塑造出风格迥异的空间效果,而室内功能布局也与庭院空间充分结合,景观面对应的是餐厅、客厅以及起居室、棋牌等相对独立的公共活动空间,室内外浑然天成,意境悠远;南区的建筑造型上,希望体现徐州的城市特点,精致大气,温和敦厚。外立面石材干挂,装饰上以中式的新古典主义为参照,体现出略带民国风格的建筑意向。

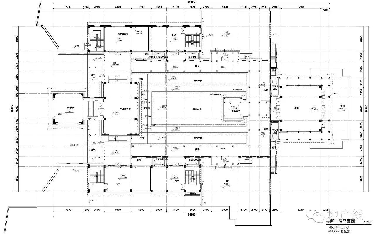
club会所一层平面图

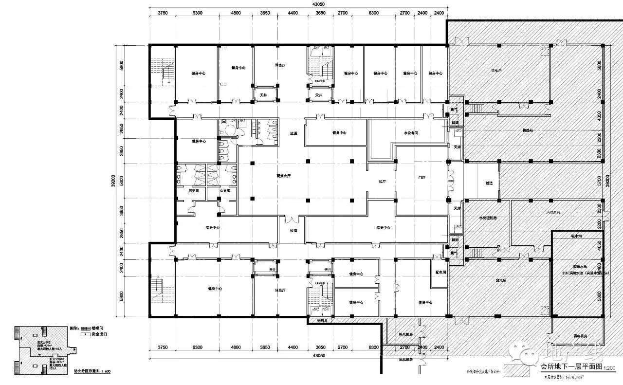
club会所地下平面图

club会所东立面图

club会所南立面图

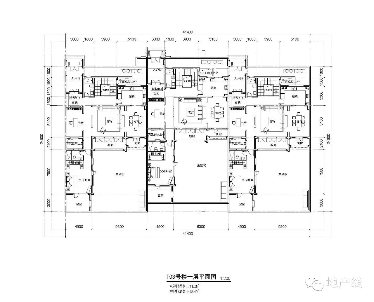
T03一层平面图

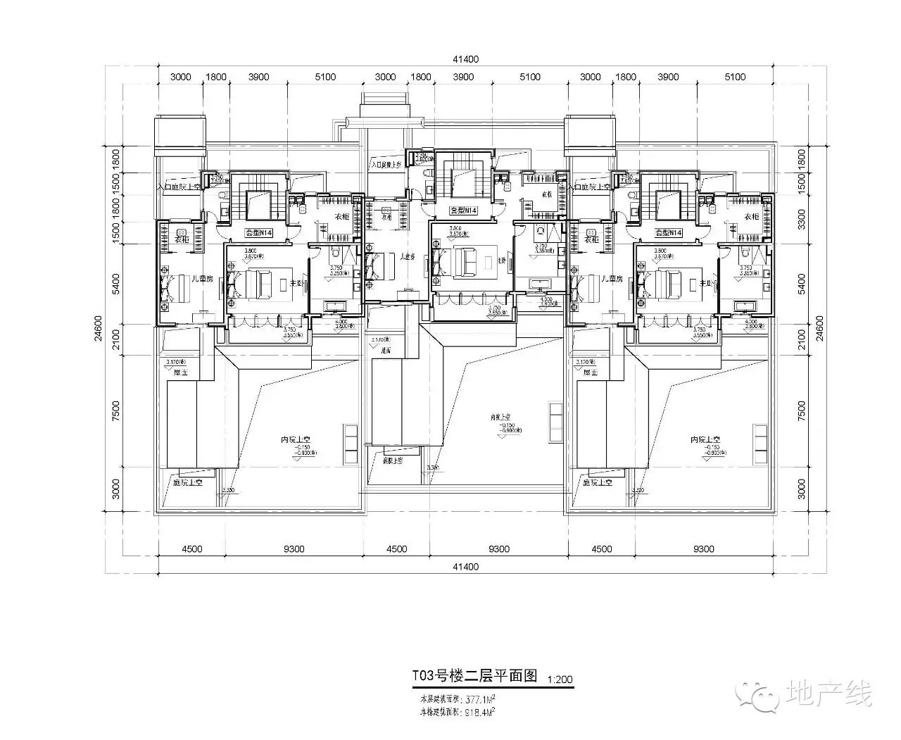
T03二层平面图

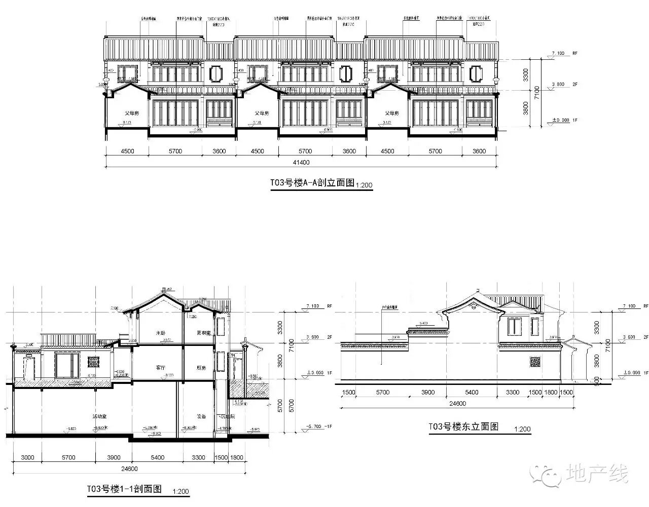
T03剖面图

工程档案

项目地址:江苏徐州

开发 商:绿城集团

建筑设计:大象建筑设计有限公司(GOA大象设计)

用地面积:9万平方米

建筑面积:地上5.4万平方米,地下8.1万平方米

容 积 率:0.60

建筑密度:37.6%

绿 地 率:34.0%

摄影师:郎水龙图片

文章评论