欢迎访问我的空间小站.
个人日记
万科
金色悦城
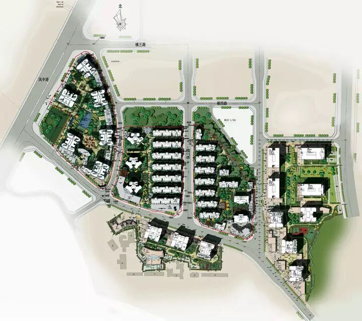
为重庆万科首入沙区打造的首个70万平方米全配套综合大社区,位于沙区核心的凤天路版块。项目一期为6栋首置类高层,二期为洋房和3栋改善类高层,三期为洋房和2栋板式改善类高层,四期为三栋首置类高层,五期为三栋首置类高层和商业综合体。
(↑场地分析↑)
基地地形高程值由东南向西、北逐渐降低,大部分区域的高程值在300—320米之间,最大高程与最小高程相差约40米。
从总体示范区动线来看,由于现场环境东高西低,地形起伏过大,所以为了消化这样的高差,最终将售楼和样板房设置在未来几年后的一个商业街角的位置,最终由景观建筑共同设计,将人从高至低无障碍且充满体验感的引至低处售楼及样板房体验区。
(↑示范区参观动线↑)
难得的大规模布局,并保持这个功能布局的可持续性。从人流导入、无障碍体验、观景、采访、然后再参观欣赏,最后看样板房,流线自然流畅,功能布局深邃但不觉得枯燥。充满新奇的构想和开发商大气的大局观。
(↑功能布局↑)
建筑平面及立面设计在这个设计中是一个完整的概念,除了要考虑几年后这个售楼处要作为商业销售外,其平面关系符合万科其他标准售楼处的尺寸和基本需要的售楼空间。流线设计也考虑了大景观流线和周边环境因素,因此流线设计自由流动。建筑立面设计同平面一样具有流动、漂浮、自然的特点,与景观环境相得益彰。设计偏重于对自然材质的选择,色彩自然又不乏现代感。在体验感方面,设计强调室内与室外的交流,对材料的选取上也做到了内外一致。
示范区从材料的选用到景观布置,人在流动过程中有着强烈的参与感。景观设计与建筑设计保持高度一致,一个个小高潮使得整个景观设计让人感觉是在体验一个自然的景观公园,充满惊喜,最终将人引入到最后的参观空间。所以即使不是来买房的人,也会觉得这是一个非常舒适的休憩空间。
室内设计现代,注重人文情怀,材质利用和建筑设计统一大气。空间细节贴近生活,贴近自然。
[em]e160[/em][em]e175[/em]
文章评论
森林里的精灵
[em]e160[/em][em]e175[/em]