如果只有8平米,这才叫设计!
个人日记
如果你住在一个只有8平方米的公寓中,那会是个怎样的场景?
在巴黎,就有一个这样大小的公寓。公寓小巧精致,由来自中国的建筑公司Kitoko工作室改造的。
这个公寓是一个功能性的公寓,虽非常小但是里面却大有内容公寓设在7楼,外面是一条又长又窄的走廊。
在巴黎,这种房子不太受欢迎。因为空间狭小,地方也很隐蔽。一般这种公寓都设在顶楼,空间设计得非常小,只有基本的内部装潢。
过去这种房子总是被用作很多用途,因此失去了最初建立它的目的,成了普通的阁楼或者仓库。现在Kitoko工作室把它改造之后,让大家对它有了新的看法。
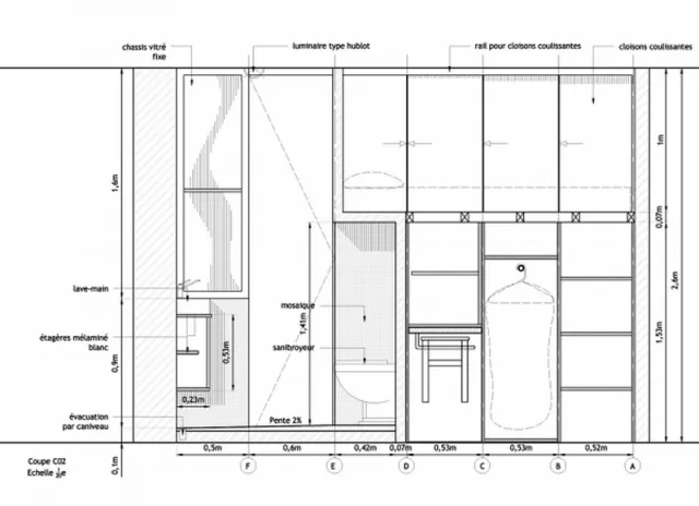
这个柜子还可以当作衣柜和抽屉,由此看来,这个柜子已经充当了很多角色了。
可以把桌子椅子收起来放在柜子里,要用的时候就把它们拿出来,不用的时候就把它们推进去。
卫生间使用马赛克墙砖打造独特的视觉效果,因卫浴空间实在太小,设计则选择清淡的三配色,从视觉上避免卫浴间过于拥挤,沉静平和。
这个公寓还有个小厨房,有微波炉,冰箱,可移动的炉子。
这个大柜子居然还藏了一个卫生间,把最后那扇门打开,我们可以看到一个很小的卫生间。
厨房,卫生间,床,衣柜,书架都有,真是麻雀虽小,五脏俱全。 看起来非常简单素雅,住在这样一个公寓里,虽小但也别有一番风味 。
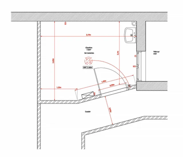
这是原始图纸
这是三维户型图
温馨提示:赠人玫瑰,手余留香!亲,看完这篇文章,记得分享保留在自己的空间内。或许你这一小小举动可能暂时能改变一点!但是一点一滴当很久以后回头望去你会发现你改变了很多以及帮助很多人。人生就是成长这样一点点积累起来的,祝你幸福。更多精彩文章请关注本空间:
温馨提示:赠人玫瑰,手余留香!亲,看完这篇文章,记得分享保留在自己的空间内。或许你这一小小举动可能暂时能改变一点!但是一点一滴当很久以后回头望去你会发现你改变了很多以及帮助很多人。人生就是成长这样一点点积累起来的,祝你幸福。更多精彩文章请关注本空间:
文章评论