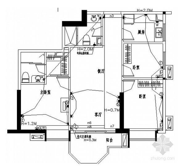
家装各房间开关插座布置表

手机日志

 (一) 卧室: 
      插座  1、床头两边各1个(电话/床头灯) 2、电视2个 3、空调1个(三孔带开关) 4、电脑1个(三孔带开关) 5、预留1至2个开关  双控或双回路控制吸顶灯(门边和床头) 装饰效果灯开关
 
【贵阳祥和兴业装饰 装修知识】家装各房间开关插座布置表 - 贵阳祥和兴业装饰 - 贵阳祥和兴业装饰

 

  (二)客厅:

        插座 1、电视2个 2、空调1个(三孔带开关) 3、沙发两侧各1个 4、预留1至2个开关 吊灯双回路控制 玄关灯双控 装饰效果灯开关

【贵阳祥和兴业装饰 装修知识】家装各房间开关插座布置表 - 贵阳祥和兴业装饰 - 贵阳祥和兴业装饰

   

   (三)卫生间:

     插座 1、热水器1个(三孔带开关) 2、洗衣机1个(三孔带开关) 3、镜边1个(吹风机)4、马桶边1个 (电话)5、预留1个至2个开关 镜前灯 排风扇(最好在马桶边上) 吸顶灯或浴霸

  

【贵阳祥和兴业装饰 装修知识】家装各房间开关插座布置表 - 贵阳祥和兴业装饰 - 贵阳祥和兴业装饰

 

    (四)厨房:

       插座 1、排烟机1个(三孔带开关)  2、炉灶下1个(以防以后换为电器灶) 3、水槽下1个(可以装小厨宝-“小型容积壁挂式电热水器”/垃圾粉碎器) 4、水台边1个 5、操作台上2一3个(用于小电器/带开关) 6、微波炉1个(三孔带开关) 7、消毒柜1个(三孔带开关) 8、预留1个开关 吸顶灯 操作台灯

     (五)餐厅:

       插座 1、电冰箱1个(三孔带开关) 2、餐桌边1至2个     3、预留1至2个开关 吊灯双回路控制 装饰效果灯

   (六)阳台:

       插座 预留1至2个(一般应该左右各一个) 开关 吸顶灯

      (七)玄关:

        插座 预留1个 

  开关 与客厅开关处做双控

  (八)书房∶

       插座    1、电脑1个(三孔带开关)  2、空调1个(三孔带开关) 3、书桌边1个(台灯)   4、预留1至2个 开关 吊灯

  

    (九)电脑一电视(音视频共享)

  电视或有线一电脑(音视频共享)

  有线:客厅一各卧室一餐厅一主卫一书房

  电话:客厅一各卧室一餐厅一主卫一书房一厨房

  网络:客厅一各卧室一餐厅一主卫一书房一厨房

  整体音响:客厅一各卧室一餐厅一主卫一书房一厨房-观景阳台

  AV共享:客厅-各卧室-餐厅-书房

  弱电集中布线﹝卫星电视线路预留)



文章评论