万科彻底解决防水问题的20张图 转 房地产经理人联盟

手机日志

 阅读引语

万科的外墙防水在业界做的最好,可以说滴水不漏,各大房企,来了一波又一波参观的,都没学会,何也?

看外观与表面工序没用,只有掌握万科积累了30年的防水节点做法详图才是滴水不漏的王道

1.涂料外墙外保温构造节点图

2.窗台防水做法节点详图

3. 面砖墙面门窗顶部节点详图

4.涂料墙面门窗顶部节点详图

5. 面砖墙面门窗侧面节点详图

6. 涂料墙面门窗侧面节点详图

7. 雨棚防水节点详图

8. 天窗防水节点详图

9. 装饰构架防水节点详图

10. 涂料屋面女儿墙防水节点详图

11. 装饰墙垛保温防水节点详图

12. 墙体阳角保温防水节点详图

13. 露台门槛防水节点详图

14.露台栏杆根部防水节点详图

15. 露台墙面防水节点详图

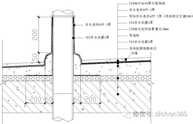
16. 女儿墙与栏板根部防水节点详图

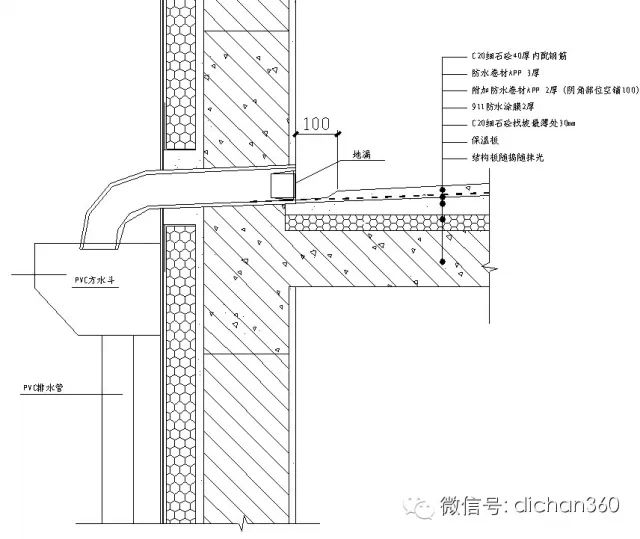
17. 露台.屋面管根部防水节点详图

18. 露台.屋面透气孔根部防水节点详图

19. 屋面落水口防水节点详图


21. 阳台墙面防水节点详图

22 阳台门槛防水节点详图

文章评论